NUOVA RESIDENZA SEGURO - SETTIMO MILANESE
- € 291.000
- Rif. SMVC7-6-290
Nuovo complesso residenziale a Seguro – Settimo Milanese
Nel quartiere di Seguro, a Settimo Milanese, nasce un nuovo progetto che unisce comfort e design in un’architettura sobria e moderna.
Il nuovo complesso residenziale è composto da tre piani fuori terra ed ospita al suo interno un totale di 6 unità abitative. Le caratteristiche di questa costruzione vengono progettate con l’ausilio di materiali innovativi presenti sul mercato, in modo tale da valorizzare al massimo il risparmio energetico.
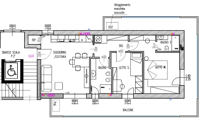
All’interno di questa nuova costruzione proponiamo in vendita uno splendido trilocale con ampia balconata e doppi servizi, situato al secondo piano piano.
L’abitazione è composta da una luminosissima zona giorno con cucina a vista, : un ambiente accogliente e funzionale, pensato per la vita quotidiana. Un disimpegno conduce alla zona notte, dove si trovano una camera matrimoniale con bagno privato, una seconda camera da letto e un secondo bagno. Completa la proprietà un pratico ripostiglio nella zona giorno e una cantina al piano seminterrato.
Tutti gli ambienti affacciano su una balconata continua, accessibile da ogni stanza, che regala luce e spazio all’intera casa.
Completano l’abitazione la possibilità di abbinare posti auto, box singoli o doppi.
La vicinanza a Milano, unita alla comodità della fermata M1 Bisceglie raggiungibile in soli 4 km, rende questa zona perfetta per chi desidera vivere in un contesto tranquillo senza rinunciare alla praticità dei collegamenti con la città.
CONSEGNA PREVISTA ENTRO FINE 2026
La vendita delle soluzioni viene effettuata in collaborazione con Startup Immobiliare.
EP gl nren - EP gl ren kWh/m3 annui - Epi - Epe - Emis. Q. Zero
- Indirizzo VIA CALATAFIMI 7
- Contratto Vendita
- Tipologia Nuove costruzioni
- Destinazione Residenziale
- Condizioni Nuova Costruzione
- Riscaldamento Autonomo
- Parcheggio Possibilità box o posto auto
- Piano 2 - piani edificio 2
- Giardino No
- Terrazzo Si
- Cucina Abitabile
- Arredato Non Arredato
- Condominio mensile 0,00 €
- Ascensore
- Cantina
